فاز یک – فاز 1 پس از مطالعه و کسب اطلاعات در رابطه با نیازهای پروژه، شرایط محیطی و قوانین و استانداردها، در فاز صفر پروژه نوبت به طراحی فاز یک میرسد. در این مرحله بایستی ویژگیهایی همچون نحوه استقرار، کیفیت و روابط فضاها و همینطور طراحی نمای ساختمان نشان داده شود. نقشههایی که در فاز یک طراحی میشوند، ساختمان را برای کارفرما و استفاده کننده معرفی کرده و برای اخذ تایید شهرداری آماده میکند. فاز یک در واقع پیشنیازی برای طراحی فاز دو محسوب میشود. در ادامه این مطلب به بررسی دقیقتر این موضوع میپردازیم.
قبل از اینکه وارد مباحث مربوط به فازهای نقشهکشی ساختمان شویم، بهتر است نگاهی اجمالی به چیستی نقشه معماری داشتهباشیم. نقشه یا پلان که در انگلیسی plan نام دارد، مجموعه ای از طراحیها و یا دیاگرامهای دوبعدی برای توصیف یک محل، شی و برقراری ارتباط ساختمانسازی با دستور العملهای ساخت است.
اجرای این پلان ها در فازهای مختلف(فاز صفر، فاز یک، فاز دو و …) میتواند روی کاغذ چاپ شود و یا به صورت یک فایل دیجیتال ارائه شود. این گونه نقشه ها به چند دسته عمده تقسیم بندی می شوند که در ادامه میبینید.
هر پروژه معماری در حالت طبیعی شامل سه فاز است : فاز صفر، فاز یک و فاز دو معماری. در این مقاله به بررسی فاز 1 خواهیم پرداخت، اما قبل از آن لازم است تا گام قبل از آن که فاز صفر است، نیز آشنا شوید. به طور معمول فاز صفر معماری از چند بخش تشکیل شده: آماده سازی و مطالعات مربوط به شناسایی و بررسی پروژه طراحی معماری بر اساس اهداف تعیین شده و مطابق ضوابط و استانداردهای مورد عمل و اقلیم، الزامات شرایط محیطی و قوانین و استانداردها و تهیه گزارش کامل توجیهی از جمله این موارد میباشد. به بیان دیگر در فاز صفر معماری کلیه نقشه ها با رعایت نوع کاربری ها بصورت پروتوتایپ تهیه و همراه با مطالعات اولیه به تایید کارفرما می رسد.
فاز یک معماری یا طراحی معماری، کلیه اطلاعات بدست آمده در فاز صفر را در قالب طرحهای معماری و نقشه های اولیه پیادهسازی میکند. فاز یک نامگذاری می شوند. نقشه های اولیه فاز یک معماری شامل موارد زیر هستند:




یکی از فواید نقشههای فاز یک این است که میتوان به راحتی طرح و سازه را به مهندسین و سایر عوامل معرفی نمود؛ و به این وسیله آنها را با فرم و طرح ساختمان و سایر اطلاعات جانبی آشنا کرد. این فرآیند منجر به جلب نظر سرمایهگذاران شده و آنها میتوانند به سادگی اجزای سازه و تاسیسات آن را بررسی کرده و هزینه و زمان اجرزای آن را برآورد کنند.
در اینجا یادآوری چند نکته در طراحی فاز یک ضروری است:
بعد از درک اهمیت و چرایی تهیه فاز یک در پیشبرد یک سازه، باید بدانیم در نقشههای فاز یک معماری چه مواردی را باید رعایت کنیم تا کافرمایان و سرمایهگذاران قضاوت مثبتی نسبت به ما داشته باشند.
در ابتدا باید بدانید که جهت صدور عوارض ساخت و ساز توسط مهندسین طراح، نقشه فاز یک در مقیاس ۱:۵۰ یا ۱:۱۰۰ ترسیم میشود.
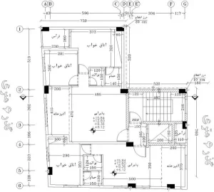
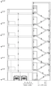
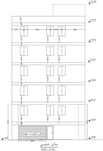
در گالری زیر میتوانید نمونه ای از طراحی نقشه فاز یک را در چند پلان مختلف مشاهده کنید. این پلانها عبارتند از:
از آنجا که در ساختمان سازی، نقشه های معماری کاربرد زیادی دارند و مبنای قضاوت و تصمیم گیری کارفرمایان، استفاده کنندگان و سرمایه گذران هستند، دقت در کیفیت ترسیمات و ارائه درست طرح اهمیت پیدا می کند. مجموعهی هلدینگ یاقوت بر آن است تا با اجرای نقشه های فاز یک و فاز دو به شما یاری رساند تا با داشتن طرح های اولیه، شرایط و عوامل مختلف را شناسایی کرده و بسنجید تا در پایان نقشه اجرایی موفقی داشته باشید.







